
当别墅的尊贵与舒适被原汁原味的保留,搬至空中;
当别墅所渴求登高望远的视觉震撼在空中呈现;
当别墅私密的全套房设计在高层里实现……
那它一定是现代人居的*终形态——麓湖北岸空中墅。麓老师带你看北岸,全面解析北岸空中墅,一个寻遍桂林,唯麓湖国际所有的高空生活之“主次卧套房设计”。

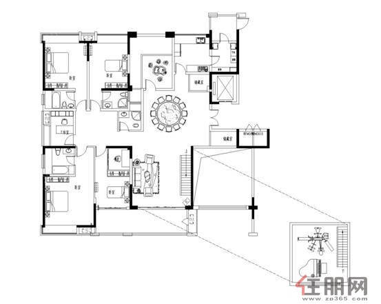
大户人居通常以三代同堂或多代同堂为目的,因此面积首先要宽阔。然而普通大户型很难做到全套房设计,即使能做到,也是勉强为之,没有经过精心考量,难免会出现各种缺陷。北岸185-235 ㎡空中墅,专为三代同堂客群量身定制。


北岸空中墅在设计之初就已把三代同堂的生活格局考虑其中。老年人每天睡眠习惯都是“睡得早,醒得早,有起夜如厕习惯”。而年轻人有时因为工作需要,有时因为生活习惯,通常都是睡得晚,起得早。主次卧套房设计就能有效缓解两代人的生活差异。互不影响,充分独立!如年轻人如果**睡懒觉,也不会被吵醒。


北岸空中墅在设计之初就已把三代同堂的生活格局考虑其中。老年人每天睡眠习惯都是“睡得早,醒得早,有起夜如厕习惯”。而年轻人有时因为工作需要,有时因为生活习惯,通常都是睡得晚,起得早。主次卧套房设计就能有效缓解两代人的生活差异。互不影响,充分独立!如年轻人如果**睡懒觉,也不会被吵醒。



麓湖北岸空中墅,三代同堂的都市湖居**改善置业!
6米高客厅墅级空间,185-235㎡宽奢大四房,户户观300亩大美麓湖!符合条件购房可享**13年物管费,立省数万!还可幸运抽取黄金大奖!预约看房送精美礼品,详询4008-110-007 转3154































